
Dieses klassische Gartenhaus überzeugt mit seiner Praktikabilität. Dank seines traditionsbewussten, unaufdringlichen Designs fügt es sich in jede Umgebung perfekt ein und strahlt dabei Gemütlichkeit und Heimeligkeit aus. Ob als Unterstellplatz für Gartengeräte, Grill, Fahrrad oder als Hobbyraum - das klassische Gartenhaus bietet Raum für Deine individuellen Bedürfnisse.
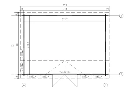
Die Grundfläche des Gartenhauses beträgt 24,01 m² mit einem Sockelmaß von 530 x 380 cm (B x T). Eine optimale Raumnutzung wird dank einer Firsthöhe von 239,4 cm gewährt.
Bei der Erstellung des Fundaments orientiere Dich an dem Grundriss bzw. an der mitgelieferten Montageanleitung! Produktblätter, Montageanleitungen und weitere wichtige Hinweise findest Du unter der Produkttabelle.
Als der Klassiker unter den Gartenhäusern verfügt ein Blockbohlenhaus über eine sehr robuste Bauweise, gepaart mit einer besonderen, natürlichen Ästhetik. Dabei orientiert sich die Bohlenbauweise an der traditionellen Blockhütte. Die Wände setzen sich aus vorgefertigten Holzbohlen zusammen, die dank einer Nut- und Feder-Verbindung ohne größere Anstrengungen aufeinander gesteckt werden können. Damit ist ein einfacher und schneller Auf- und Abbau garantiert. An der Kopfseite des Gartenhauses sorgt die charakteristische Verkämmung (spezielle Einkerbungen im Holz) nicht nur für eine schöne Optik, sondern hält das ganze Konstrukt auch zusammen und macht es absolut wind- und wetterfest.
Die Wandstärke von 44 mm sorgt für gute Stabilität und Langlebigkeit. Dank der Bohlenstärke ist das Gartenhaus im Winter frostsicher, und im Sommer hat es gute wärmeisolierende Eigenschaften, was es zu einem perfekten Übernachtungsort für Gäste macht. Auch Pflanzen können in diesem Gartenhaus problemlos überwintern.
Das hochwertig gearbeitete Gartenhaus zeichnet sich durch sein ausgesuchtes, erstklassiges Fichtenholz aus. Fichte ist besonders langlebig und robust, was für die notwendige Stabilität sorgt. Außerdem überzeugt die Holzart mit geringem Gewicht, einer leichten Verarbeitung und hoher Elastizität.
Um die Langlebigkeit des Holzes zu erhöhen und das Gartenhaus optisch aufzuwerten, wurde die Oberfläche des Gartenhauses mit Lack behandelt. Der Holzlack bietet Schutz, indem er die Außenwände des Gartenhauses versiegelt. Somit ist es von Anfang an gegen Witterungseinflüsse und Schädlinge geschützt.
Das estnische Unternehmen ist darauf spezialisiert, hochwertigste Holz Gartenhäuser und Überdachungen in verschiedenen Formen und Größen herzustellen. Stabile Hölzer und passgenaue Fertigung tragen dazu bei, ein langlebiges Produkt zu erhalten, das sehr gut den Witterungseinflüssen trotzt. Lasita – High Quality aus Estland
Jetzt Produkt bewerten