
Klein, aber fein – dieses Gerätehaus bietet ausreichend Stauraum, ohne dabei viel Platz im Garten einzunehmen. So kannst du deine Geräte ganz leicht witterungsgeschützt und diebstahlsicher verstauen.
Für mehr Raum und vielfältige Nutzungsmöglichkeiten sorgt dieses Gartenhaus mit Anbaudach. Das großzügig geschnittene Anbaudach ermöglicht es, den Gartenalltag in vollen Zügen im Freien genießen zu können – geschützt vor Sonne, Wind und Regen. Der Platz unter dem Dach kann als gemütliche Terrasse zum Sitzen, Spielen oder Werkeln bei jedem Wetter genutzt werden. Alternativ eignet es sich auch als optimaler Unterstellplatz für zahlreiche Gartengeräte.
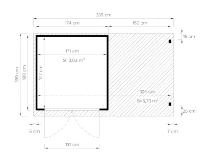
Die Grundfläche des Gartenhauses beträgt 3,03 m². Das Sockelmaß (Haus ohne Anbau) liegt bei 174 x 180 cm (B x T). Das Sockelmaß liegt bei 174 x 180 cm (B x T). Eine optimale Raumnutzung wird dank einer Firsthöhe von 211 cm gewährt.
Orientiere dich für die Erstellung des Fundaments am Grundriss bzw. an der mitgelieferten Montageanleitung! Produktblätter, Montageanleitungen und weitere wichtige Hinweise findest du unter der Produkttabelle.
Dank der Elementbauweise ist dein Gartenhaus besonders schnell und einfach montiert. Bei dieser Bauweise bestehen die Wände nicht aus einzelnen Bohlen, sondern aus bereits vorgefertigten Wandelementen, die sich aus einem Holzrahmen und bereits miteinander befestigten Profilhölzern zusammensetzen. Diese Wandelemente werden einfach miteinander verschraubt, das vorgefertigte Dachelement aufgesetzt und schon kann man sich an diesem praktischen Gartenhaus erfreuen! Eine individuelle Gestaltung bieten zudem Türen und Fenster, die durch das Austauschen einzelner Wandelemente eingebaut werden können.
Dach ist spiegelverkehrt aufbaubar: Das Dach dieses Gartenhauses kann sowohl links als auch rechts angebracht werden.
Mit seiner Wandstärke von 14 mm ist das Gartenhaus ideal als Stellplatz für Fahrräder, Gartengeräte und -utensilien geeignet. Leicht zu montieren, reicht die einfache Ausführung als Unterstand oder Abstellraum vollkommen aus.
Das hochwertig gearbeitete Gartenhaus zeichnet sich durch sein ausgesuchtes erstklassiges Fichtenholz aus. Fichte ist besonders langlebig und robust, was für die notwendige Stabilität sorgt. Außerdem überzeugt die Holzart mit geringem Gewicht, einer leichten Verarbeitung und hoher Elastizität.
Das naturbelassene Holz sorgt für ein natürliches und zeitloses Aussehen. Außerdem ermöglicht dir das unbehandelte Holz, das Äußere des Gartenhauses ganz nach deinen eigenen Wünschen zu gestalten.
Bitte beachte, dass das Gartenhaus spätestens direkt nach der Montage von innen und außen mit einem Holzschutzmittel zu bearbeiten ist. Bei der Auswahl von Holzschutzmitteln empfehlen wir, dich im Fachhandel beraten zu lassen oder der Empfehlung des Herstellers zu folgen, die du in der beiliegenden Montageanleitung findest. Nach dem Erstanstrich sollte die Behandlung mindestens alle zwei Jahre wiederholt werden, um das Holz dauerhaft vor Verformung, Verwitterung und Schädlingsbefall zu schützen.
Ein modernes Pultdach aus Massivholz mit Nut- und Feder-Verbindung verleiht deinem Gartenhaus eine stilvolle, elegante Optik. Durch nur eine geneigte Dachfläche ist die Nutzungsfläche im Inneren des Gartenhauses deutlich weniger eingeschränkt und der Verlust an Nutzraum gering. Zudem lässt die Neigungsseite des Pultdaches das Regenwasser gut abfließen und es ist die Montage von nur einer Regenrinne nötig.
Folgende Türen sind im Lieferumfang enthalten: 1 x Doppeltür
Der Fußboden ist im Lieferumfang enthalten. Dieser ist besonders belastbar, wobei das hochwertige Massivholz für gute statische Eigenschaften und mehr Stabilität sorgt. Somit ist das Abstellen von schweren Gartengeräten kein Problem. Die einzelnen Fußbretter lassen sich mithilfe des inklusiven Montagezubehörs leicht zusammenbauen.
Das Gartenhaus wird ohne Unterkonstruktionshölzer geliefert. Da diese das Gartenhaus vor Witterungseinflüssen, Bodenfeuchtigkeit, Schimmel und Schädlingen schützen, ist die Anschaffung einer Unterkonstruktion dennoch zu empfehlen. Die Art der Unterkonstruktion hängt dabei von der Art des Untergrunds und des Fundaments ab. Passend für deinen Untergrund bieten wir Konstruktionshölzer aus Holz, WPC oder Aluminium, die mit ihrer Langlebigkeit überzeugen. Unter Gartenhauszubehör findest du alternativ einen passenden Fußboden inkl. kesseldruckimprägnierter Unterkonstruktion sowie das nötige Montagematerial.
Preiswerte Markenprodukte rund um Holz und darüber hinaus: WOODTEX bietet erstklassige Qualität bei Garten-/Gerätehäusern, Sichtschutzzäunen, Terrassendielen und Gewächshäusern. Seit vielen Jahren produziert der Hersteller alles, was den Outdoorbereich zum angenehmen Aufenthaltsort werden lässt. Innovative Materialien, hochwertiges Holz und günstige Preise – dafür steht WOODTEX. Kurzum: Viel Garten für wenig Geld.
Jetzt Produkt bewerten