
Dieses klassische Gartenhaus überzeugt mit seiner Praktikabilität. Dank seines traditionsbewussten, unaufdringlichen Designs fügt es sich in jede Umgebung perfekt ein und strahlt dabei Gemütlichkeit und Heimeligkeit aus. Ob als Unterstellplatz für Gartengeräte, Grills, Fahrräder oder als Hobbyraum – das klassische Gartenhaus bietet Raum für deine individuellen Bedürfnisse.
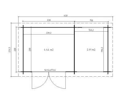
Für mehr Raum und vielfältige Nutzungsmöglichkeiten sorgt dieses Gartenhaus mit Anbaudach. Das großzügig geschnittene Anbaudach ermöglicht es, den Gartenalltag in vollen Zügen im Freien genießen zu können – geschützt vor Sonne, Wind und Regen. Der Platz unter dem Dach kann als gemütliche Terrasse zum Sitzen, Spielen oder Werkeln bei jedem Wetter genutzt werden. Alternativ eignet es sich auch als optimaler Unterstellplatz für zahlreiche Gartengeräte. Die Grundfläche des Gartenhauses beträgt 7,38 m². Das Sockelmaß (Haus ohne Anbau) liegt bei 230 x 200 cm (B x T). Eine optimale Raumnutzung wird dank einer Firsthöhe von 211 cm gewährt.
Orientiere dich für die Erstellung des Fundaments am Grundriss bzw. an der mitgelieferten Montageanleitung! Produktblätter, Montageanleitungen und weitere wichtige Hinweise findest du unter der Produkttabelle.
Als der Klassiker unter den Gartenhäusern zeichnet sich ein Blockbohlenhaus durch seine sehr robuste Bauweise, gepaart mit einer besonderen, natürlichen Ästhetik, aus. Dabei orientiert sich diese Bauweise an der traditionellen Blockhütte. Die Wände setzen sich aus vorgefertigten Holzbohlen zusammen, die dank einer Nut- und Feder-Verbindung ohne größere Anstrengungen aufeinander gesteckt werden können. Damit ist ein einfacher und schneller Auf- und Abbau garantiert. An der Kopfseite des Gartenhauses sorgt die charakteristische Verkämmung (spezielle Einkerbungen im Holz) nicht nur für eine einzigartige Optik, sondern hält das ganze Konstrukt auch zusammen und macht es absolut wind- und wetterfest.
Mit seiner Wandstärke von 19 mm ist das Gartenhaus ideal als Stellplatz für Fahrräder, Gartengeräte und -utensilien geeignet. Leicht zu montieren, reicht die einfache Ausführung als Unterstand oder Abstellraum vollkommen aus.
Das hochwertig gearbeitete Gartenhaus zeichnet sich durch sein ausgesuchtes erstklassiges Fichtenholz aus. Fichte ist besonders langlebig und robust, was für die notwendige Stabilität sorgt. Außerdem überzeugt die Holzart mit geringem Gewicht, einer leichten Verarbeitung und hoher Elastizität.
Das naturbelassene Holz sorgt für ein natürliches und zeitloses Aussehen. Außerdem ermöglicht dir das unbehandelte Holz, das Äußere des Gartenhauses ganz nach deinen eigenen Wünschen zu gestalten.
Bitte beachte, dass das Gartenhaus spätestens direkt nach der Montage von innen und außen mit einem Holzschutzmittel zu bearbeiten ist. Bei der Auswahl von Holzschutzmitteln empfehlen wir, dich im Fachhandel beraten zu lassen oder der Empfehlung des Herstellers zu folgen, die du in der beiliegenden Montageanleitung findest. Nach dem Erstanstrich sollte die Behandlung mindestens alle zwei Jahre wiederholt werden, um das Holz dauerhaft vor Verformung, Verwitterung und Schädlingsbefall zu schützen.
Ein modernes Pultdach aus Massivholz mit Nut- und Feder-Verbindung verleiht deinem Gartenhaus eine stilvolle, elegante Optik. Durch nur eine geneigte Dachfläche ist die Nutzungsfläche im Inneren des Gartenhauses deutlich weniger eingeschränkt und der Verlust an Nutzraum gering. Zudem lässt die Neigungsseite des Pultdaches das Regenwasser gut abfließen und es ist die Montage von nur einer Regenrinne nötig.
Folgende Türen sind im Lieferumfang enthalten: 1 Doppeltür mit Lichtausschnitten aus bruchsicherem Kunstglas
Der Fußboden ist im Lieferumfang enthalten. Dieser ist besonders belastbar, wobei das hochwertige Massivholz für gute statische Eigenschaften und mehr Stabilität sorgt. Somit ist das Abstellen von schweren Gartengeräten kein Problem. Die einzelnen Fußbretter lassen sich mithilfe des inklusiven Montagezubehörs leicht zusammenbauen.
Das estnische Unternehmen ist darauf spezialisiert, hochwertigste Holz Gartenhäuser und Überdachungen in verschiedenen Formen und Größen herzustellen. Stabile Hölzer und passgenaue Fertigung tragen dazu bei, ein langlebiges Produkt zu erhalten, das sehr gut den Witterungseinflüssen trotzt. Lasita – High Quality aus Estland
Jetzt Produkt bewerten