
Das Gartenhaus besitzt eine großzügige überdachte Terrasse, die reichlich Platz für gemütliche Garten- oder Grillabende mit Freunden bietet. Durch das breite Vordach kann der Freiraum auch bei schlechtem Wetter für absolutes Vergnügen sorgen. Ein umlaufendes Geländer rundet das Ganze ab.
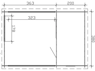
Bei der Erstellung des Fundaments orientiere Dich an dem Grundriss bzw. an der mitgelieferten Montageanleitung! Produktblätter, Montageanleitungen und weitere wichtige Hinweise findest Du unter der Produkttabelle.
Als der Klassiker unter den Gartenhäusern verfügt ein Blockbohlenhaus über eine sehr robuste Bauweise, gepaart mit einer besonderen, natürlichen Ästhetik. Dabei orientiert sich die Bohlenbauweise an der traditionellen Blockhütte. Die Wände setzen sich aus vorgefertigten Holzbohlen zusammen, die dank einer Nut- und Feder-Verbindung ohne größere Anstrengungen aufeinander gesteckt werden können. Damit ist ein einfacher und schneller Auf- und Abbau garantiert. An der Kopfseite des Gartenhauses sorgt die charakteristische Verkämmung (spezielle Einkerbungen im Holz) nicht nur für eine schöne Optik, sondern hält das ganze Konstrukt auch zusammen und macht es absolut wind- und wetterfest.
Mit einer Wandstärke von 28 mm ist das robuste Gartenhaus der perfekte Aufenthaltsort im Sommer. Aufgrund wärmedämmender Eigenschaften des hochwertigen Holzes ist es im Inneren des Gartenhauses während der prallen Sommerhitze 3-5 Grad kühler, in den kälteren Abendstunden 3-5 Grad wärmer als draußen. So hast Du im heißen Sommer immer ein schattiges Plätzchen. Dank der soliden Wandstärke verwittert das Holz nicht so schnell und bleibt langlebig und stabil.
Das hochwertig gearbeitete Gartenhaus zeichnet sich durch sein ausgesuchtes, erstklassiges Fichtenholz aus. Fichte ist besonders langlebig und robust, was für die notwendige Stabilität sorgt. Außerdem überzeugt die Holzart mit geringem Gewicht, einer leichten Verarbeitung und hoher Elastizität.
Das naturbelassene Holz sorgt für ein natürliches und zeitloses Aussehen. Außerdem ermöglicht Dir das unbehandelte Holz, das Äußere des Gartenhauses ganz nach Deinen eigenen Wünschen zu gestalten.
Seit über 30 Jahren ist Skan Holz darauf spezialisiert, hochwertige Holzbausätze für den Garten herzustellen. Blockbohlenhäuser, Pavillons, Terrassenüberdachungen, Carports, Holzgaragen und Vordächer sind aufgrund der passgenauen Fertigung einfach und schnell aufgebaut. Dadurch erhältst Du ein optimales Preis- Leistungsverhältnis mit hoher Funktionalität. Und der individuellen Gestaltung sind Tür und Tor geöffnet. Skan Holz – gute Qualität, individuell und preisgünstig.
Jetzt Produkt bewerten