Dieser Carport bietet optimalen Schutz für Ihr Auto, Wohnmobil oder Wohnwagen.
Wetterschutz Ihr Auto ist dank des Carports vor Witterungseinflüssen abgeschirmt. Durch die ständige Luftzirkulation in einem Carport können nass abgestellte Fahrzeuge schneller trocknen. So verringern Sie die Rostbildung.
Stabile Grundkonstruktion Die 12 x 12 cm starken Pfosten aus Leimholz sind sehr stabil. Dank der praktischen Systembauweise wird zudem ein einfacher und schneller Aufbau ermöglicht. Befestigungsmaterial, Kopfbänder und Aufbauanleitung im Lieferumfang enthalten.
Schöner Farbton Aufgrund der farblichen Behandlung erhält das Holz einen schiefergrauen Farbton. Leimholz aus Fichte ist ein hochwertiger Verbund aus mehreren Holzteilen. Es ist wetterfest miteinander verleimt, hat nur eine geringe Rissbildung und ist sehr belastbar.
Größe Dieser Carport ist extra groß und breit um auch für Wohnmobile und Wohnwagen ausreichend Platz und Schutz zu bieten.
Technische Daten
Technische Daten - Caravan-Carport Emsland
Attribut
Wert
Lieferumfang
Carport, Montagematerial
Hersteller
SKAN HOLZ
Material
Holz
Farbe
Schiefer
Dachform
Flachdach
Schneelast (kg/m²)
125 kg/m²
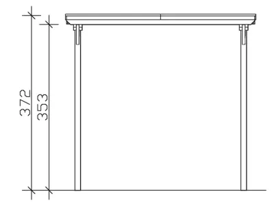
Firsthöhe / Max. Höhe (cm)
Der First bildet den höchsten Punkt eines Hauses . Gemessen wird vom Boden bis hinauf zur äußersten Spitze des Daches.
242 cm
Pfostenanzahl
6
Pfostenstärke (cm)
12 x 12 cm
Info-PDFs
Sicherheitshinweise
Herstellerinformationen
Hersteller Daten - SKAN HOLZ Skan Holz Europe GmbH