
Dieses klassische Gartenhaus überzeugt mit seiner Praktikabilität. Dank seines traditionsbewussten, unaufdringlichen Designs fügt es sich in jede Umgebung perfekt ein und strahlt dabei Gemütlichkeit und Heimeligkeit aus. Ob als Unterstellplatz für Gartengeräte, Grills, Fahrräder oder als Hobbyraum – das klassische Gartenhaus bietet Raum für deine individuellen Bedürfnisse.
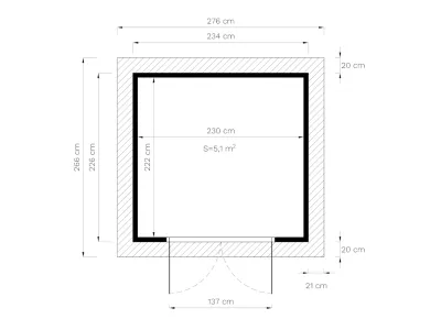
Die Grundfläche des Gartenhauses beträgt 5,1 m². Eine optimale Raumnutzung wird dank einer Firsthöhe von 265 cm gewährt.
Orientiere dich für die Erstellung des Fundaments am Grundriss bzw. an der mitgelieferten Montageanleitung! Produktblätter, Montageanleitungen und weitere wichtige Hinweise findest du unter der Produkttabelle.
Die Türposition ist variabel montierbar: So kannst du dein Gartenhaus ganz nach deinen Bedürfnissen und äußeren Gegebenheiten aufbauen.
Mit seiner Wandstärke von 19 mm ist das Gartenhaus ideal als Stellplatz für Fahrräder, Gartengeräte und -utensilien geeignet. Leicht zu montieren, reicht die einfache Ausführung als Unterstand oder Abstellraum vollkommen aus.
Das hochwertig gearbeitete Gartenhaus zeichnet sich durch sein ausgesuchtes erstklassiges Fichtenholz aus. Fichte ist besonders langlebig und robust, was für die notwendige Stabilität sorgt. Außerdem überzeugt die Holzart mit geringem Gewicht, einer leichten Verarbeitung und hoher Elastizität.
Das naturbelassene Holz sorgt für ein natürliches und zeitloses Aussehen. Außerdem ermöglicht dir das unbehandelte Holz, das Äußere des Gartenhauses ganz nach deinen eigenen Wünschen zu gestalten.
Bitte beachte, dass das Gartenhaus spätestens direkt nach der Montage von innen und außen mit einem Holzschutzmittel zu bearbeiten ist. Bei der Auswahl von Holzschutzmitteln empfehlen wir, dich im Fachhandel beraten zu lassen oder der Empfehlung des Herstellers zu folgen, die du in der beiliegenden Montageanleitung findest. Nach dem Erstanstrich sollte die Behandlung mindestens alle zwei Jahre wiederholt werden, um das Holz dauerhaft vor Verformung, Verwitterung und Schädlingsbefall zu schützen.
Bewährt, praktisch und preiswert – das Satteldach ist der Klassiker unter den Dachformen. Mit seinen zwei sanft abfallenden Schrägen lässt dieses Dach das Regenwasser leicht abfließen und bietet somit weniger Angriffsfläche für Regen und Schnee. Dadurch muss das Satteldach auch weniger häufig gewartet werden wie beispielsweise das Flach- oder das Pultdach. Außerdem schützen die weiten Dachüberstände die Konstruktion auch die Wände vor Witterungseinflüssen.
Folgende Fenster werden mitgeliefert: 1 Fenster, Echtglas
Preiswerte Markenprodukte rund um Holz und darüber hinaus: WOODTEX bietet erstklassige Qualität bei Garten-/Gerätehäusern, Sichtschutzzäunen, Terrassendielen und Gewächshäusern. Seit vielen Jahren produziert der Hersteller alles, was den Outdoorbereich zum angenehmen Aufenthaltsort werden lässt. Innovative Materialien, hochwertiges Holz und günstige Preise – dafür steht WOODTEX. Kurzum: Viel Garten für wenig Geld.
Jetzt Produkt bewerten