Gartenhäuser aus Holz sind in drei verschiedenen Bauweisen erhältlich: Blockbohlenbauweise, Systembauweise, Elementbauweise.
Blockbohlenbauweise
Wandstärke (mm)
Die Wandstärke bezeichnet die Dicke der Wand. Je dicker die Wand, desto mehr Stabilität und Isolation bietet das Gartenhaus.
70 mm
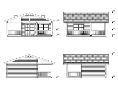
Dachform
Satteldach
Dachausführung
Dachbretter
Dachfläche (m²)
47,30 m²
Dachneigung
18°
Schneelast (kg/m²)
89 kg/m²
Außenmaß inkl. Dachüberstand (B x T)
Die Dachüberstände werden in das Außenmaß mit eingerechnet. Das Außenmaß inkl. Dachüberstand gibt das absolute Maß des Hauses an.
870 x 758 cm
Sockelmaß Haus (B x T)
Das Sockelmaß beschreibt im Wesentlichen die Grundfläche des Gartenhauses. Gemessen wird hierbei von Außenwandmitte zu Außenwandmitte. Das Sockelmaß ist Grundlage für den Bau eines passenden Fundaments.
400 x 500 cm
Außenmaß inkl. Dachüberstand - Breite (cm)
870 cm
Außenmaß inkl. Dachüberstand - Tiefe (cm)
758 cm
Grundfläche (m²)
31,30 m²
Haupttür - Durchgangsbreite (cm)
Gibt die Breite der Türöffnung an.
155 cm
Haupttür - Durchgangshöhe (cm)
Gibt die Höhe der Türöffnung an.
200 cm
Firsthöhe / Max. Höhe (cm)
Der First bildet den höchsten Punkt eines Hauses . Gemessen wird vom Boden bis hinauf zur äußersten Spitze des Daches.
400 cm
Wandhöhe / Min. Höhe (cm)
250 cm
Dachstärke (mm)
19 mm
Fußboden-Stärke (mm)
28 mm
Material
Holz
Holzart
Fichte
Anbau
ohne Anbau
Türenanzahl
1
Haupttür - Art und Ausstattung
Gummi- und Silikondichtung, Leimholz-Doppeltür, Profilzylinderschloss